Navigation ein-/ausblenden
Profil
Aktuelle Baustellen
Alles über EKP
Die Köpfe
Jobs
Hausplanung
Baustellen
Kompetenzen
Partner
Kontakt
Cookie Consent by Privacy Policies Generator
Wir entwickeln, Planen und Bauen
Wir entwickeln, Planen und Bauen
für Hanseaten und diejenigen, die es werden wollen.
für Hanseaten und diejenigen, die es werden wollen.
Mehr erfahren
Mehr erfahren
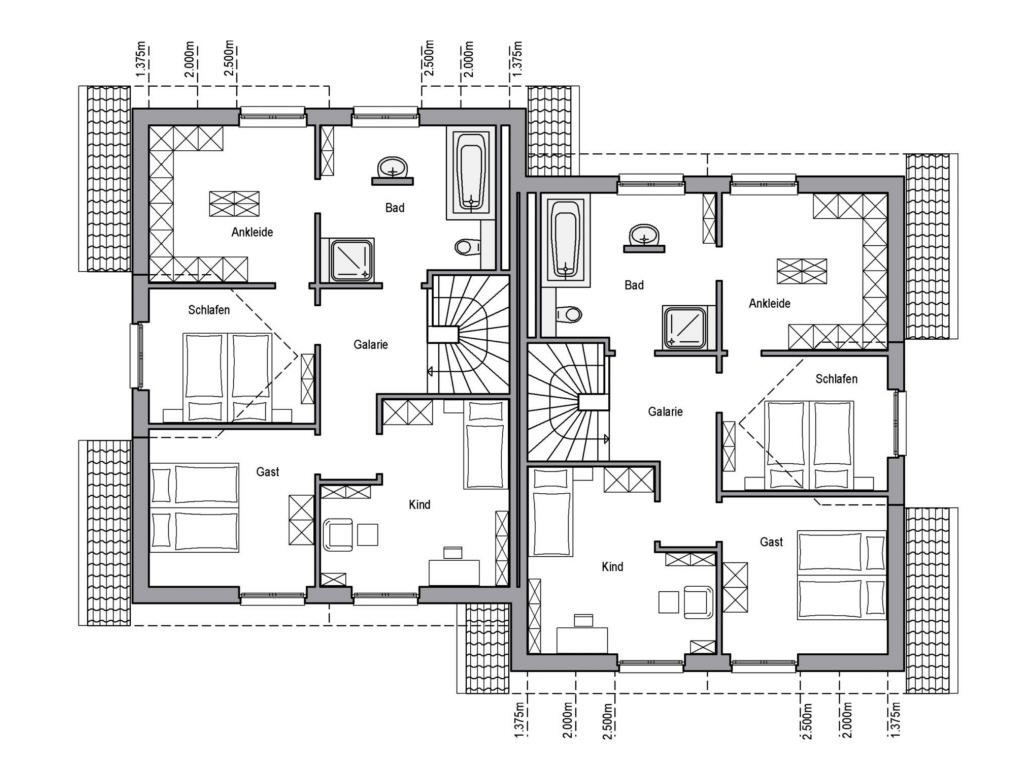
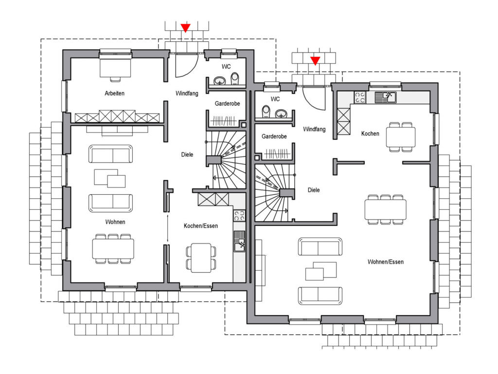
Beispiele für
Hausplanung
Doppelhäuser
ZURÜCK
ZURÜCK
Start
Hausplanung
Doppelhäuser
Verblendstein
DHH-V-004
×
×
×
×